Интересно мнение участников. На ваш взгляд это хорошие удобные планировки? Вход в санузел через спальню это нормально? Мне вот как-то кажется не очень практичным, а самое непрактичное, что места даже доя маленькой гардеробной в комнатах нет, и комнаты одна 12 м, вторая 9.....
Конференция "О своем, о девичьем""О своем, о девичьем"
Раздел: Холивар
Отвечать в конференциях и заводить новые темы может любой участник, независимо от наличия регистрации на сайте 7я.ру.
Про современные планировки
13.04.2026 08:45:12, ПчЁлКа™®200 комментариев

Гардеробные тоже в каждой спальне должны быть. 14.04.2026 00:00:29, KengaLu
Мне такое не надо. Я к другому привыкла, а это уже вопрос удобства. Гардеробных никогда не было, шкафы прекрасно выполняют эту функцию. А вот кладовка необходима. Но тоже шкаф может заменить.
13.04.2026 21:41:56, Julinika
13.04.2026 21:41:56, Julinika
По прочтению темы выскажу предположение.
Люди, еще не вышедшие из большого секса, очень поддерживают идею двери в ванну из спальни.
А люди с больным ЖКТ поддерживают туалет в дальнем темном углу. Потому что иначе объяснить беспокойство по поводу бесконечного пуканья невозможно. 13.04.2026 19:19:15, Гипотеза
Люди, еще не вышедшие из большого секса, очень поддерживают идею двери в ванну из спальни.
А люди с больным ЖКТ поддерживают туалет в дальнем темном углу. Потому что иначе объяснить беспокойство по поводу бесконечного пуканья невозможно. 13.04.2026 19:19:15, Гипотеза
Понятное дело если трахаются, то не срут и не сикают ночами, а если сикают и срут, то им уже не до секса ;))
13.04.2026 20:56:04, ПчЁлКа™®
А я поняла так - дальний туалет для неромантичных потребностей, а ближний - для связанных с интимом
13.04.2026 21:04:51, Беата (просто читатель)
13.04.2026 21:04:51, Беата (просто читатель)

13.04.2026 15:27:45, IrenAr

я с Вами согласна, тоже про это писала ;)))
13.04.2026 14:43:01, ПчЁлКа™®

Как полярный вариант вот, чуть побольше метраж трешки), там как раз и потолки 7.5 где-то обещали)).
13.04.2026 14:19:29, Оттолина

Но место кстати, ужасное(, в кольце дорог.
[ссылка-1] 13.04.2026 17:45:18, Оттолина
у Вас такая?:)
13.04.2026 20:56:30, ПчЁлКа™®
Тогда уж проще квартиру Пугачевой на Арбате купить такой же площади. Все таки уникальность а не штамповка.
13.04.2026 19:00:45, Зимняя

Идея хорошая, но реализация страдает как всегда.
Несколько сан узлов хороши при большой площади, а не на такой. При маленькой общей площади квартиры желательно метры перераспределять на жилую площадь, а не на сан узлы. Объединение кухни и комнаты на такой маленькой площади тоже плохо.
Гардеробные в маленьких квартирах тоже не нужны, т к гардеробная съедает полезную площадь, то место, где человек стоит, когда входит в нее, при маленькой площади лучше обходиться шкафами.
Мои родители получили 3-шку в 1980 году с комнатами 9 и 11 метров, не смотря на маленький размер 2-х комнат, считаю ту планировку идеальной. Длинный коридор буквой Г, спальни максимально далеко от входной двери, кухни, и большой комнаты, между двумя маленькими комнатами раздельный сан узел. Плюс огромный балкон на 2 стороны дома и лоджия. Т е могли планировки придумывать грамотные.
13.04.2026 13:04:36, Xyz
Несколько сан узлов хороши при большой площади, а не на такой. При маленькой общей площади квартиры желательно метры перераспределять на жилую площадь, а не на сан узлы. Объединение кухни и комнаты на такой маленькой площади тоже плохо.
Гардеробные в маленьких квартирах тоже не нужны, т к гардеробная съедает полезную площадь, то место, где человек стоит, когда входит в нее, при маленькой площади лучше обходиться шкафами.
Мои родители получили 3-шку в 1980 году с комнатами 9 и 11 метров, не смотря на маленький размер 2-х комнат, считаю ту планировку идеальной. Длинный коридор буквой Г, спальни максимально далеко от входной двери, кухни, и большой комнаты, между двумя маленькими комнатами раздельный сан узел. Плюс огромный балкон на 2 стороны дома и лоджия. Т е могли планировки придумывать грамотные.
13.04.2026 13:04:36, Xyz

Два самых лучших варианта санузла при спальне - это санузел через гардеробную (то есть две двери: сначала встроенные шкафы с двух сторон, потом еще одна дверь в санузел) или возле входа в спальню дверь в санузел. А гостевой санузел прямо у входа в квартиру. Плюс удобно , когда есть разделение зон на общественную (гост. санузел, гостиная, столовая, кухня) и на приватную (спальня, санузел, детские), которая находится после общественной вдали
13.04.2026 12:22:46, Ольга1999 тел
Мне близок феншуйский подход - туалет должен быть маленьким и незаметным. Ванна по обстоятельствам, кто-то не любит в ней лежать, я например, у меня душевая.
Я бы не стала брать КВ с 2 санузлами, если семья 1-3 человека.
Нам хватает одного.
Дом другое дело, там можно что-то иметь про запас.
Зато в квартире мне нужен балкон или терраса дышать воздухом, когда одеваться лень.
13.04.2026 12:10:40, Зимняя
Я бы не стала брать КВ с 2 санузлами, если семья 1-3 человека.
Нам хватает одного.
Дом другое дело, там можно что-то иметь про запас.
Зато в квартире мне нужен балкон или терраса дышать воздухом, когда одеваться лень.
13.04.2026 12:10:40, Зимняя

В самом низЕ :). Но повторю тут. Я что-то приглядываюсь и ничего удобного не вижу.

13.04.2026 11:04:37, ПчЁлКа™®

13.04.2026 11:04:37, ПчЁлКа™®

13.04.2026 15:02:51, Шрайбикус
на 3.7 м площади Вы бы это всe вместили?
13.04.2026 20:58:15, ПчЁлКа™®

13.04.2026 22:37:40, Шрайбикус
В санузел 3,7 метра я в принципе биде не стала бы ставить, обошлась бы жопомойкой и всe.
13.04.2026 22:59:39, ПчЁлКа™®
Два Су по 3.5 метра ? Это лишнее мне кажется.. комнаты чуть больше этих узлов. Прихожей нет в принципе, а где держать верхнюю одежду и обувь? Оттолина права, там просится гардеробная или просто холл со шкафом вместо су
13.04.2026 12:13:47, Зимняя
Так гардеробная рядом с санузлом)) плюс шкаф при входе, это на нижнем фото. На верхнем - огромный шкаф при входе
13.04.2026 13:43:13, Так бывает
13.04.2026 13:43:13, Так бывает
Посмотрела, да, точно. Все в кучу, выход из санузла, входная дверь, гардеробная..
13.04.2026 17:01:29, Зимняя
13.04.2026 17:01:29, Зимняя
Насчет огромного я не уверена, прикидывая по общей площади гирина корридора там скромная, наверное около 90 см -100 см, а значит шакф 60 см не войдет, только 30 или 45 см по глубине. Вот те и огромный ....
13.04.2026 14:27:31, ПчЁлКа™®
Я тут волею случая в хрущёвский однушке торцевой оказалась, не знаю что за серия, белые панельные пятиэтажки. И я, женщина размера и роста S, почувствовала себя Гулливером в стране лилипутов) Так что эти квартиры/ планировки «по сравнению с Бубликовым просто прекрасны»))
13.04.2026 14:56:44, Так бывает


А ведь в 5-тиметровой тоже вчетвером помещались... правда, мебель была - "столик-шкафчик" + 4 табуретки и самодельные полки по двум сторонам от пола до потолка. Ну и xолодильник "Саратов" :-) высотой с куxонный шкафчик.
13.04.2026 20:53:12, Хомяк Абрикосовый
В прихожей большой шкаф нарисован во всю стену. Но планировка ужасная, соглашусь, шкаф её не спасает.
13.04.2026 13:12:19, гундина
13.04.2026 13:12:19, гундина

Конечно, в 15.3 не влезет все что они нарисовали (кухня и пр.). У меня одна детская 16 метров, я прекрасно представляю.
13.04.2026 12:28:27, Ольга1999 тел

И кухня есть, и диванчик с телевизором. На кухне и нормальных холодильник, и варочная панель с духовкой и посудомойка. Все ровно как на картинке. Туда еще и пара книжных шкафов влезут. Если толщиной 30 см - их и не видно будет.
На одного человека вполне.
13.04.2026 22:24:15, Яшими ( МарикаЧ)
Согласна. У меня кухня 13 м, несмотря на малое количество мебели и речи не идёт о диване посреди помещения.
13.04.2026 12:36:57, Зимняя
Согласна. 9 метров комната на плане это 2.5 на 3.5 а кровать в треть ширины комнаты - это 80 см? Стол тогда наверное 40 см где то как подоконник
13.04.2026 12:34:54, Зимняя
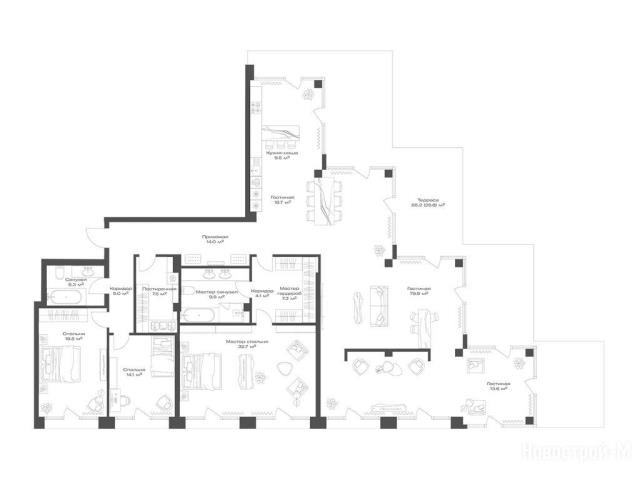
Так там на одном плане размеры написаны :))) ванные 3,7 и 3,4, комнаты 12,7 и 9.2 :))) тут и так понятно, что один санузел будет тубзиком со стиралками, а второй придeтся делать полноценным, но со стлячей ванной или душевой ;))) и всей семьeй ходить в него через спальню, либо в спальне сортир со стиралкой делать, тоже идея прекрасная. Можно как советовпли выше в принципе убрать санузел из спальни и сделать гардеробную, умываться и сикать, кому срочно надо в кухне, а бельe стирать в прачечной ибо машинка уже никуда не влезает :))))
13.04.2026 12:18:51, ПчЁлКа™®

Если вы хотите ее на больший состав - неизбежно придется делать «всё в одном». 13.04.2026 12:49:54, Dots
Не ну что вы ищите что не нравится, поищите планировки которые вам нравятся! На 50 м семь метров сантехники это такое конечно непростое задание. Опять таки смотря кто как привык.
13.04.2026 12:30:09, Зимняя
В интересующем меня районе - это единственный новострой с хорошим расположением и единственный новострой за последние лет 16 ;)) особо не разбежишься в поисках :))
13.04.2026 17:41:39, ПчЁлКа™®

Я Вас умоляю, на каких оленях? 10 мин пешком до м. Строгино. Новострой на Твардовского тоже было 20 лет назад промзоной и однушки по 4,5 ляма, а сейчас к этим однушкам не подступиться. :))
13.04.2026 19:48:02, ПчЁлКа™®
2 км это 15-20 минут спокойным шагом, очень нормальное расстояние. У меня до вокзала так. Хожу туда сюда нормально если не ливень и не полночь.
13.04.2026 23:13:32, Зимняя
Гардеробная в мокрой зоне риск. Могут затопить , а вы из-за встроенных шкафов/полок и пр. не увидете
13.04.2026 12:29:43, Ольга1999 тел
В родительской квартире, когда я там жила, кладовку затопило не в мокрой зоне. В итоге имею два узких покрывала вместо одного большого:)
13.04.2026 17:29:24, Беата (просто читатель)
13.04.2026 17:29:24, Беата (просто читатель)
Как минимум , вы не сможете вовремя предъявить ущерб. Ну и плесень и прочее. Если прямо тряпки, то все равно, но зачем их хранить?
13.04.2026 17:26:01, Ольга1999 тел
Это да. Наверное нужно как-то просматривать такой переделанный санузел. Ну либо действительно прачечную там замутить с гладильной, сушильной итд
13.04.2026 17:28:27, Зимняя
я про это даже писать не стала, но никто этих рисков не увидел :))
13.04.2026 13:54:44, ПчЁлКа™®


такой семье вполне удобно вход в санузел и спальни 13.04.2026 10:15:47, Аккуратова Мария
Опять тема из разряда "как можно не любить лубутены и ходить в ЭККО" ))
13.04.2026 10:10:04, м-да
При каждой спальне прекрасно иметь свою ванну. Это супер удобно во всех планах.
И один санузел общий,*гостевой*. Проверено)
13.04.2026 10:04:54, птичка певч.
И один санузел общий,*гостевой*. Проверено)
13.04.2026 10:04:54, птичка певч.
в случае автора, вероятно, речь про планировку, где этот туалет - единственный
13.04.2026 12:42:49, Чернобурка"
Она планы выкладывала, не единственные. Вот только комнаты там очень маленькие(
13.04.2026 14:18:02, птичка певч.
13.04.2026 14:18:02, птичка певч.
Современные планировки в большинстве нехорошие и неудобные, и несовременные такие же ((
А вообще всё зависит от потребностей конкретной семьи. Мы на прошлой неделе изрядно шокировали мастера по потолкам и освещению, объясняя, где нужно добавить светильников. Да, вот тут - во всю стену, тут будут книжные шкафы. Да, во всю стену. Да, а вот тут яркое точечное освещение. Нет, я понимаю, что для компа нужно другое освещение. Нет, здесь не нужны лампы со спецфитоподсветкой. И со спецрыбоподсветкой не нужны. Здесь вышивальный станок будет стоять )))
Так что, наверно, и вход через спальню, и крошечные комнатки имеют своё глубокое обоснование? 13.04.2026 09:58:42, Лабрика
А вообще всё зависит от потребностей конкретной семьи. Мы на прошлой неделе изрядно шокировали мастера по потолкам и освещению, объясняя, где нужно добавить светильников. Да, вот тут - во всю стену, тут будут книжные шкафы. Да, во всю стену. Да, а вот тут яркое точечное освещение. Нет, я понимаю, что для компа нужно другое освещение. Нет, здесь не нужны лампы со спецфитоподсветкой. И со спецрыбоподсветкой не нужны. Здесь вышивальный станок будет стоять )))
Так что, наверно, и вход через спальню, и крошечные комнатки имеют своё глубокое обоснование? 13.04.2026 09:58:42, Лабрика
Мне не нравится санузе при спальне. Лишняя дверь в спальне явно не украшает комнату и нарушет симметрию стен. Если это спальня пары - то банально недуобно - один спит, а второй становится источником звуков и запахов, плюс звуки ходьбы и открывания-закрывания двери. Стойкая ассоциация с гостиницами, а гостиницы это слишком неуютно. Самое удобное - это возле входа в спальню соседние двери - санузел и гардеробная.
13.04.2026 09:57:35, muurka
13.04.2026 09:57:35, muurka
Если это спальня пары, то это как раз мега-удобно. Пары сексом иногда занимаются, а не только воняют и спят невпопад. Очень удобно иметь свою ванную комнату, в которую чтобы попасть не надо выходить в общий коридор.
13.04.2026 15:58:54, гундина
13.04.2026 15:58:54, гундина
Вы пробовали?)
Я жила и так, и так. Санузел при спальне очень удобно. Там есть плотно закрывающиеся двери и вентиляция, никаких звуков-запахов не добавляется. 13.04.2026 11:40:37, Leenka
Я жила и так, и так. Санузел при спальне очень удобно. Там есть плотно закрывающиеся двери и вентиляция, никаких звуков-запахов не добавляется. 13.04.2026 11:40:37, Leenka
Пробовала. Вот я утром сплю, муж встает, идет в ванную, включает там свет, который успевает пронункуть в комнату - в аринципе уже этого достаточно, чтобы я пронулась и заснула снова. Не представляю дверь, которая совсем не пропускает звуки и запахи, это же не бункер, а выдвижной порог точно не покрывает эти задачи. К тому же в ванную должна быть естественная приточка - эту роль как раз выполняет щель под дверью. Вот муж принял душ, вышел за одеждой - а месте с ним вышло облако пара, запахи геля для душа и парфюма, свет опять же. Муж сходил в гардеробную, оделся, вернулся бриться. И все примерно то же самое вечером, если один из супругов ложится раньше.
13.04.2026 12:36:53, muurka
13.04.2026 12:36:53, muurka
А вытяжка принудительная, которая гудит. У меня еще в доме она интеллектуальная, выключается только когда влажность до нормы падает, а пока не продует всe, будет гудеть, а еще если не включить ее, то все равно, если влажность поднимается, то она включится, и после выключения еще несколько минут работает, даже если ввключаешь, заботиться, чтобы всe амбре вытянуть :))
13.04.2026 13:59:54, ПчЁлКа™®
В новых домах обычно тянет отлично. Но если нет поддува то просто законом физики неоткуда взяться воздуху свежему
13.04.2026 17:02:42, Зимняя
Я, наверное, менее нежная, чем вы. По крайней мере, разбудить меня трудно.
13.04.2026 13:51:57, Leenka
13.04.2026 13:51:57, Leenka
Да, точно. У нас для этого шкаф вынесен в коридор, именно потому что санузел далеко, встал, закрыл дверь в спальню и идёшь там шуруешь по туалету, коридору и кухне.
А другой спокойно спит 13.04.2026 12:39:44, Зимняя
А другой спокойно спит 13.04.2026 12:39:44, Зимняя

вот когда комнаты небольшие-это как-то не очень, если нет отдельного места для гардеробной.
Моя свекровь живет. 2 санузла больших по площади, в одном ванна, в другом унитаз и душевая кабина. огромный коридор, неплохая кухня и малюсенькие две комнаты. И это дом постройки не старше 2006 года
13.04.2026 09:50:57, Ленка-пенка43

Мне не нравится вход в спальни напрямую из кухни - вот это как раз убого, получается студия, а не нормальная квартира. 13.04.2026 09:42:07, Dots
Вход в спальню из кухни это просто треш, согласна
13.04.2026 09:57:02, ПчЁлКа™®
О... Это Вы еще не знаете планировку квартиры нашей тети!
А если бы Вы знали планировку квартиры тети!.. То санузел из спальной комнаты показался бы Вам очень даже ничего.
У нее есть туалет, вход из прихожей, а вот в ванную комнату вход через кухню.
Через кухню, я повторю!
Кто это выдумал? Дому почти 100 лет. Во всех квартирах именно так.
Правда в ванной есть окно, но сама ванная комнате небольшая.
Туалет тоже не большой, раковину для мытья рук там можно приспособить, но совсем крошечную, и это первое что хочется сделать.
А что делать с ванной и вовсе не понятно, ведь чтобы утвердить перепланировку это нужно... Это ОЧЕНЬ сильно нужно постараться.
9 м комната это... Издевательство это. Хотя, я в Питере видела трехкомнатную квартиру, где комнаты были: 6, 9, 12, а кухня - 3,5, сидячая ванну я там тоже впервые увидела. Такая вот квартира для очень маленьких людей. 13.04.2026 09:39:41, av10
У меня ровно так в квартире: проход в ванную через кухню, ванная с окном, дом 1917 года. Все очень просто: не было в нем изначально ванной комнаты, а был черный ход, дверь его как раз чаще всего была на кухне. А потом дом реконструировали, черную лестницу убрали, а площадки черной лестницы превратили в ванную комнату. Отсюда и окна в ванной.
13.04.2026 15:08:35, Musenka
Я сейчас активно смотрю двух риэлторов блогеров, там из старого фонда , по их словам, с перепланировками проблем нет, тк почти все стены несущие. Проблемы с газовыми нагревателями, но их можно на электрические заменить) Не знала, что в центре Москвы, в зданиях начала прошлого века воды горячей нет. Когда я как- то написала, что в Италии нет горячей воды, везде нагреватели , то народ удивился, некоторые « пофукали». А, еще, обратила внимание, очень мало квартир с балконами . Вот прям если есть какой то аппендикс в пол квадрата, то , считай, повезло)))
13.04.2026 09:58:10, БезОбрАза
Неправильно написала , частичку пропустила, « НЕ несущие»)) и они тоже говорят, что тк дома старые, при перепланировке укреплять надо все .
13.04.2026 10:19:25, БезОбрАза
Когда там ломаешь, то вдруг оказывается пара колонн внутри дымоход в каждой комнате. И вся новая планировка с их учетом, часто не так, как хотелось бы) и в комнатах отдушины!)
13.04.2026 10:53:04, Лиметт
Бабушкина сестра жила в доме, где квартиры и комнаты были большие, от 25 м маленькая до 40 большая, при этом крошечный ледяной (без отопления рядом) туалет, и отдельно огромная ванная метров 20, на 2 (!) квартиры. Позже, когда квартиры из коммуналок сделали отдельными, народ эти ванные разделил конечно.
13.04.2026 11:43:25, Оттолина
скорее всего изначально не было ванной, потом уж нагородили, как смогли
13.04.2026 09:48:01, Ленка-пенка43
Скорее всего думали об облегчении быта - таскать горячую воду из кухни в ванную при ней удобнее. С окном ванная - тоже ограничение по планировке, плюс конструкция стояков (абы где не протянешь)
13.04.2026 10:03:30, Dots
Мы жили в такой квартире. Особенность старых домов. Но вообще ванная бала шикарная, довольно большая, с окном по длинной стороне :) Какого-то неудобства не помню, руки после туалета мыли на кухне.
13.04.2026 09:45:25, Dots
А если бы Вы знали планировку квартиры тети!.. То санузел из спальной комнаты показался бы Вам очень даже ничего.
У нее есть туалет, вход из прихожей, а вот в ванную комнату вход через кухню.
Через кухню, я повторю!
Кто это выдумал? Дому почти 100 лет. Во всех квартирах именно так.
Правда в ванной есть окно, но сама ванная комнате небольшая.
Туалет тоже не большой, раковину для мытья рук там можно приспособить, но совсем крошечную, и это первое что хочется сделать.
А что делать с ванной и вовсе не понятно, ведь чтобы утвердить перепланировку это нужно... Это ОЧЕНЬ сильно нужно постараться.
9 м комната это... Издевательство это. Хотя, я в Питере видела трехкомнатную квартиру, где комнаты были: 6, 9, 12, а кухня - 3,5, сидячая ванну я там тоже впервые увидела. Такая вот квартира для очень маленьких людей. 13.04.2026 09:39:41, av10

13.04.2026 15:08:35, Musenka
Эта квартира в 1928 построена. Конструктивизм. Неужели ванных комнат не было тогда, а черный ход был?
13.04.2026 16:07:30, av10
Про каждый дом нужно отдельно узнавать. Для меня черный ход вообще не удивителен: большинство домов в наших переулках имеют\имели второй выход
А вот моя одноклассница жила в доме на Рождественском бульваре, где ванной не было. Была кухня с раковиной, рядом- Сандуновские бани. Ну или в своей комнате (это коммуналка коридорного типа была) в тазике... Они из этого дома в конце 80-начале 90 только переехали. Так что да, дома без ванных комнат были.
13.04.2026 21:29:31, Musenka s
А вот моя одноклассница жила в доме на Рождественском бульваре, где ванной не было. Была кухня с раковиной, рядом- Сандуновские бани. Ну или в своей комнате (это коммуналка коридорного типа была) в тазике... Они из этого дома в конце 80-начале 90 только переехали. Так что да, дома без ванных комнат были.
13.04.2026 21:29:31, Musenka s
Горячую воду получали, нагревая дровяные или угольные печи. В ванной либо тоже была печь для нагрева воды, либо вода поступала из кухни. Чтобы не таскать по квартире дрова или уголь, помещения располагали рядом, делали дверь.
13.04.2026 11:24:52, Hel
13.04.2026 11:24:52, Hel

Не, там стены не несущие как раз. Есть колоны на которые все опирается, но сами стены - дерево и дранка с штукатуркой. Ломать легко, но утверждать все, что связано с мокрыми точками сложно.
13.04.2026 10:07:46, av10


У этого дома есть достоинства, но есть и несколько недостатков: отсутствие лифта, неудобное расположение ванной комнаты, коммуналка с непонятным статусом выше этажом, деревянные перекрытия, отсутствие балкона...
Из достоинств: толстые стены, вентиляция в каждой комнате, просторные комнаты и реально просторная прихожая, высокие потолки. Хотя, именно из-за высоких потолков ремонт станет в копеечку, а он там очень нужен.
Высыпаюсь там хорошо! Люблю кирпичные здания. 13.04.2026 10:27:03, av10
Из достоинств: толстые стены, вентиляция в каждой комнате, просторные комнаты и реально просторная прихожая, высокие потолки. Хотя, именно из-за высоких потолков ремонт станет в копеечку, а он там очень нужен.
Высыпаюсь там хорошо! Люблю кирпичные здания. 13.04.2026 10:27:03, av10

13.04.2026 11:43:25, Оттолина
я видела ванну (саму ванну) за занавесочкой на коммунальной кухне
13.04.2026 09:55:40, Лось-Анджелес
13.04.2026 09:55:40, Лось-Анджелес

Не похоже. Ванная с окном не редкость. А вот ход через кухню встречаю второй раз, и все в старом фонде.
13.04.2026 10:06:05, av10

13.04.2026 10:03:30, Dots


9 метров - маленькая комната, но в моём детстве жила с сестрой вдоём в такой комнате, ещё и с бабушкой.
13.04.2026 09:36:24, Манюня Хнуш
кухня сомещенная с гостинной - по мне очень даже хороший вариант. Кладовка и парковка в подземном этаже, куда едет лифт - очень хороший, выход из подъезда без ступенек - ок, кладовка вместо балкона - неплохо. Гардеробная и второй санузел - лайк.
не нравится, активно не нравится и считаю надо что-то с этим делать на законодательном уровне - сдача дома без шумоизоляции. 13.04.2026 09:34:28, Лось-Анджелес
не нравится, активно не нравится и считаю надо что-то с этим делать на законодательном уровне - сдача дома без шумоизоляции. 13.04.2026 09:34:28, Лось-Анджелес

Мне лично это не обязательно. 13.04.2026 09:31:10, Лиметт
Родственница переделывала 2 ккв на Петроградке, сделала СУ проходным, из спальни и из кухни туда были две двери. На мой взгляд бредяцкий бред. Мне удобно по советски, если санузел из коридора и подальше от комнат находится, слышимость никто не отменял.
13.04.2026 09:31:00, Зимняя
Санузел при спальне - когда он не один, удобно. У меня так и есть. При начальной планировке в квартире было три санузла, мы оставили два, один из них при нашей спальне.
13.04.2026 09:20:01, Leenka
У меня отец был радиолюбителем. И как-то по схеме в журнале он собрал устройство под названием "антипук". Не знаю, сам придумал или так и называлось. Входишь в туалет и начинает играть музыка.
Собственно, это сейчас во всяких общественных заведениях используется.
13.04.2026 22:35:40, Яшими ( МарикаЧ)
На маленькой площади его в любом случае будет слышно, хоть через стенку :) Туалет при кухне еще более неудобен в плане звуков, просто мы привыкли к такому расположению в советских домах и типа не обращаем внимания.
13.04.2026 10:11:59, Dots
Да примерно так же, как семья ест на кухне, а за тонкой стенкой - пукают)
Двери нормальные, не фанерные, спасают от любых звуков. 13.04.2026 10:09:04, Хатуль Мадан
Санузел в спальне обычно не единственный. И чаще всего в спальне это именно ванна/душ/раковина/биде. А туалет, как таковой - отдельно.
13.04.2026 11:17:32, Хатуль Мадан
Это же экономварианты, трешка около 55 м, смешно просто. По-хорошему, это средняя двушка или приличная однушка. Если нужна трешка, то хотя бы от 75 м смотреть надо, лучше побольше конечно.
13.04.2026 13:46:44, Оттолина
Смотря, какая, каким способом установлена, какие стены в квартире и из чего двери. У меня гудит тихонечко, в коридоре не слышно. Так на то он и монолит, стены толстые. В панельке, наверное, даже соседскую слышно.
В новых домах часто центральные системы климата, принудительные вытяжки могут быть на крыше, мощные.
13.04.2026 19:13:34, Хатуль Мадан
Лайфхак.
Поставьте ночной свет. Он включается на минималку, не гудит, по глазам не бьет, самое то.
Самый дешевый просто включается в розетку и срабатывает на движение. 13.04.2026 19:27:12, Хатуль Мадан
т.е удобно когда один лежит в кровати читает, а второй пукает в свое удовольствие в санузле? У меня просто нет такого опыта, поэтому я не знаю, как это.
13.04.2026 09:35:21, ПчЁлКа™®

Собственно, это сейчас во всяких общественных заведениях используется.
13.04.2026 22:35:40, Яшими ( МарикаЧ)
Мы как-то жили в гостинице с мужем, где вход в туалет из комнату, а не из предбанника. Очень неудобно:((
13.04.2026 12:46:20, Чернобурка"
Дверь закрыли и пердите себе на здоровье. Если уж совсем всё неприлично громко происходит, то можно уйти в дальний санузел, вас же не заставляют пользоваться исключительно этим санузлом.
13.04.2026 11:57:23, гундина
13.04.2026 11:57:23, гундина


Двери нормальные, не фанерные, спасают от любых звуков. 13.04.2026 10:09:04, Хатуль Мадан
Если семья ест, то кто тогда пукает?!;))) у меня все едят одновременно и в это время никто не пукает нигде. А вот когда я спать ложусь и ночью устраивают пукальню ;))) но я дверь закрыла и мне не слышно ничего, а здесь видимо из спальни выходить придется :))
13.04.2026 10:31:07, ПчЁлКа™®
А как семья из нескольких человек вообще помещается для еды на кухне в 4 метра одновременно? Там же ещё печка, холодильник, мебель.
13.04.2026 20:14:41, Очень интересно
Из 4-х нормально помещается, пятый уже не влезет.
13.04.2026 23:05:38, ПчЁлКа™®

в данной планировке два полноценных санузла размером 3 кв метра ;)))), площадь комнаты с санузлом 9-12 кв м :))) Вот смотрю на эту планировку и пытаюсь понять, что курили архитекторы, когда это придумывали :))
13.04.2026 12:22:08, ПчЁлКа™®
Санузел совмещённый, метров 8, наверное. С окном, выходящим на лоджии. Дверь закрывается, ничего не слышно. Я и когда муж на работу собирается рано, не слышу ничего.
Но у нас не принято в туалете с открытыми дверьми сидеть)
13.04.2026 10:01:06, Leenka
Но у нас не принято в туалете с открытыми дверьми сидеть)
13.04.2026 10:01:06, Leenka
какие 8 метров?? Санузлы по 3,7 метров, если бы 8-10 метров, то вопросов бы не было и комната метров 20.... а тут комната 9 метров, в ней две двери и санузел 3,7 метра, туда даже нормальную стиралку не впихнешь, я думаю
13.04.2026 10:34:38, ПчЁлКа™®

А я не понимаю, почему эконом-трешка - это смешно. Зачем людям приличная однушка, если нужна именно трешка, а финансов хватает только на такой метраж.
13.04.2026 14:56:55, Oxygen2009
13.04.2026 14:56:55, Oxygen2009
Сменю фамилию на Потанина или Дереписку вместо своей, тогда и буду смотреть московские хоромы поцентральнее и подороже, а пока рассматриваю то, что доступно по финансам и в интересующем меня районе.
13.04.2026 14:03:34, ПчЁлКа™®
а стандартные планировки с 1м туалетом, когда туалет примыкает к кухне? один чай пьет, другой пукает..
13.04.2026 09:40:40, Шерлок
13.04.2026 09:40:40, Шерлок
я сейчас в хрущевке живу, с кухней 4 метра. Вход в санузлы из коридора, мне, когда чай пью не слышно, как кто-то пукает, в комнату когда дверь открыта слышно, но можно и закрыть, через две двери не слышно. Со спальней и санузлом в 3 м будет т амбре говенное скорее всего заносить в спальню и слышимость будет через одну дверь, что надо ;))
13.04.2026 10:02:51, ПчЁлКа™®
Вытяжка должна быть исправна конечно.
Приспальный туалет - отличная вещь. Я изначально была против, но на этапе проектирования дома, согласилась таки, и не жалею ни секунды. В идеале конечно при каждой спальне свой санузел делать.
13.04.2026 12:00:42, гундина
Приспальный туалет - отличная вещь. Я изначально была против, но на этапе проектирования дома, согласилась таки, и не жалею ни секунды. В идеале конечно при каждой спальне свой санузел делать.
13.04.2026 12:00:42, гундина
я наоборот отказалась после проживания в Австрии с приспальным туалетом, хотя по плану он был.
13.04.2026 12:25:19, ПчЁлКа™®
Ничего не заносит, вентиляция есть, дверь закрывается.
Обратите внимание, все, у кого есть санузел при спальне, написали, что это удобно. Ни один не написал - фу, шумно, воняет. 13.04.2026 11:47:18, Leenka
Обратите внимание, все, у кого есть санузел при спальне, написали, что это удобно. Ни один не написал - фу, шумно, воняет. 13.04.2026 11:47:18, Leenka
Так кто же признается, что купив квартиру за 20+лямов или построив дом, оказалось что спать, когда тебе пукают практически в ухо неуютно. Может у Вас комната 20 метров и санузел 10 метров и живeте Вы одна, конечно удобно, а если комната 9 метров и санузел 3 м, то не слышать как вторая половина нужду справляет невозможно :)) а если он ещe и харкаться будет как мой дед на весь дом, то с этих 3-х метров от харкания просто дверь вынесет взрывной волной;))))
13.04.2026 12:35:02, ПчЁлКа™®
Ну уж если кто так стесняется признаться, может написать, что было, не понравилось, купил новую квартиру втрое дороже, без этого санузла при спальне)
Если вторая половина шумная, может и быть, наверное, дискомфортно. Может, вам нужна полная тишина, а я ничего не слышу, когда сплю, мне нормально.
13.04.2026 13:49:56, Leenka
Если вторая половина шумная, может и быть, наверное, дискомфортно. Может, вам нужна полная тишина, а я ничего не слышу, когда сплю, мне нормально.
13.04.2026 13:49:56, Leenka
У нас комната 20 метров, санузел 8. Не приходилось даже задумываться о том, о чем вы пишете.
Покажу фото своего санузла в мастер-спальне. Он ещё не доработан, будут заменены пластиковые откосы на окне на керамогранит и будет ещё штора висеть большая на окне.
13.04.2026 13:19:02, гундина
Покажу фото своего санузла в мастер-спальне. Он ещё не доработан, будут заменены пластиковые откосы на окне на керамогранит и будет ещё штора висеть большая на окне.
13.04.2026 13:19:02, гундина
Услада для глаз ваши интерьеры! :) Спасибо, что показываете
Коврик - мечта моя:)
13.04.2026 15:26:09, Беата (просто читатель)
Коврик - мечта моя:)
13.04.2026 15:26:09, Беата (просто читатель)
Спасибо большое!) Коврик кстати до неприличия дешевый, но он мне тоже очень уж понравился))
13.04.2026 16:01:14, гундина
13.04.2026 16:01:14, гундина
я про это и говорю у Вас санузел 8 м и комната 20, его поди попробуй пропукай и комнату проароматизируй потом, никаких пуков не хватит. А здесь 9 м комната и 3 м санузел, дверь открыл, чтобы выйти и весь влажный, теплый и пропуканный воздух в комнате окажется тут же ;))
13.04.2026 14:09:24, ПчЁлКа™®
вытяжка так мгновенно не работает :))
13.04.2026 10:35:32, ПчЁлКа™®
не рассказывайте сказок, а то мы дикие и вытяжек у нас нет :)) и конечно принудительная вытяжка ни у кого не гудит, у всех беззвучный режим ;)))
13.04.2026 12:36:35, ПчЁлКа™®

В новых домах часто центральные системы климата, принудительные вытяжки могут быть на крыше, мощные.
13.04.2026 19:13:34, Хатуль Мадан
а то, что после принятмя душа желательно дверь в ванную открыть или вытяжку работающей оставить, чтобы влажность убрать. Вам нормально будет спаться по гудение? Мне лично нет. Но я понимаю, никто в ванную двери не открывает и не проветривает, также как и лотки из стиралок не вынимает и не просушивмет и дверцу в стиралке на проветривание тоже не открывает, лишнее это.
13.04.2026 14:13:07, ПчЁлКа™®
Вы всё в кучу смешали зачем-то. Какая связь между гудением и проветриванием стиралки? Ну и да, гудение не всем мешает, к тому жена ночь вытяжку оставлять не обязательно
13.04.2026 15:10:46, Oxygen2009
13.04.2026 15:10:46, Oxygen2009
Прямая. Мы обсуждаем коифортно ли спать в комнате 9 метров, в которой на расстоянии вытянутой ноги вход в туалет. Никто про ночь и не говорит, хотя если ходить в темноте ночью сикать, наверное ни свет, ни вытяжка мешать не будут. А так функционал санузла с сильно ограниченным временем использования напрягает. Вечером я сплю, муж мыться пошeл? Или утром он спит я в ванную мыться пошла? Или пусть спит, я пошла мыться в другой санузел, чтобы ему не мешать, но тогда мне зачем санузел в спальне, чтобы ночью в темноте сикать ходить, ибо если свет включишь вытяжка гудеть будет. А если перед сном помылся, то как ванную проветрить от влажности дверь открыть или вытяжку включить?;))
13.04.2026 15:35:35, ПчЁлКа™®

Поставьте ночной свет. Он включается на минималку, не гудит, по глазам не бьет, самое то.
Самый дешевый просто включается в розетку и срабатывает на движение. 13.04.2026 19:27:12, Хатуль Мадан
Я раньше была в полной уверенности, что для душа до\после секса
13.04.2026 17:30:55, Беата (просто читатель)
13.04.2026 17:30:55, Беата (просто читатель)
Мне кажется, все дело в финансах. Недорогие варианты лепятся из остатков дорогих.
13.04.2026 09:12:45, Зимняя
А за 75 м2 от 25 млн не в Москве не слышали?
Это однушка. Дом, правда, уже сдан.
Все остальные квартиры в этом доме проданы, поэтому больше никакой информацией не обладаю.
13.04.2026 11:05:27, Фруате
Дешевые :), вы же в теме. В большинстве московских новостроек за 21 млн только студию 25-30 м можно купить
13.04.2026 10:36:16, Dots
24 млн за 62,2 м с кладовкой на стадии котлована и 21 млн за 50, 8 м без кладовки - это недорогие варианты?!
13.04.2026 09:41:35, ПчЁлКа™®
Ой, я в своем районе лучше не буду цены называть.
Да, в сравнении с вторичкой эт дорого.
Там все просто и без подвохов по планировке) 13.04.2026 12:00:44, Зимняя
Да, в сравнении с вторичкой эт дорого.
Там все просто и без подвохов по планировке) 13.04.2026 12:00:44, Зимняя

Это однушка. Дом, правда, уже сдан.
Все остальные квартиры в этом доме проданы, поэтому больше никакой информацией не обладаю.
13.04.2026 11:05:27, Фруате
мы и за 40 млн за однушку в Москве у м. Строгино слышали и что?:)))
13.04.2026 12:38:02, ПчЁлКа™®

13.04.2026 10:36:16, Dots
Думаю, что ближе к 29 году (год сдачи) в этом проекте тоже студию можно будет миллионов за 30 купить. Я не знаю про какое Вы большинство говорите. В интересуещей меня локации, в принципе новостроя нет. В Саларьево студии по 10-12 млн., над ними тоже думаю.
13.04.2026 10:54:48, ПчЁлКа™®
У нас самая дешёвая двушка в доме, потому что самая маленькая, в итоге планировка не идеал мягко говоря, и я иногда порываюсь ее поменять на что-то приличное, но как прикину хлопоты и расходы так и успокаиваюсь.
Все имеет свою цену короче говоря
13.04.2026 09:15:14, Зимняя
Все имеет свою цену короче говоря
13.04.2026 09:15:14, Зимняя

Но видимо сейчас так модно/удобно, раз такое покупают?
13.04.2026 09:07:07, УникаЛьнаЯ
вот по мне также, сделать большую гардеробную и один раздельный санузел, ну хорошо, пусть будет один тубзик, а второй совмещенный санузел и на троих вполне удобно. А зачем два санузла при недостатке мест хранения и площади мне тоже не понятно.
13.04.2026 09:44:56, ПчЁлКа™®
когда утром всем одновременно нужен душ и туалет - вот тут множественные санузлы и начинают выигрывать
13.04.2026 09:36:23, Лось-Анджелес

13.04.2026 10:43:44, УникаЛьнаЯ
я когда-то сделала в доме два санузала рядом, стена к стене - и оказалось ну очень удобно для двух детей и двух взрослых. При том, что дополнителльных инженерных сложностей с коммуникациями это практически не потребовало, и места тоже не слишком много отгрызло (частично использовано пространство под лестницей)
13.04.2026 11:12:55, Лось-Анджелес
13.04.2026 11:12:55, Лось-Анджелес
нет, у меня на даче 3 санузла, если не устанавливать очередность пользования и время, то их 3-х даже на 4х не хватает. В хрущобе и одного хватает на троих, но тут устпновлен жесткий график :)
13.04.2026 10:06:23, ПчЁлКа™®
+++++
13.04.2026 09:28:34, на правах анонима
13.04.2026 09:28:34, на правах анонима


Ну и да, на 2-3-4 человек при двух комнатах и проходной кухне, объединенной еще и с коридором, два санузла таки непозволительная роскошь, имхо.
13.04.2026 09:32:39, УникаЛьнаЯ
Один в ванной, второй с душем. Мы себе так "на старость" сделали. 2 туалета, М и Ж:)
13.04.2026 13:12:26, хъ на работе
Мне не нравится размер. Кухня, а-ля столовая и большая комната на 15.3 - это безобразие. Зачем им две ванны? Им там стоять негде.
13.04.2026 09:04:27, Ольга1999 тел
мне не нравится в принципе расположение кухни и невозможность сделать сквозняк в квартире. Запах рыбы будет в спальне и не проветришь ведь. С одной стороны жареная рыба, с другой стороны запахи тубзика в спальне. Я не совсем понимаю зачем им там два санузла
13.04.2026 09:52:19, ПчЁлКа™®
Ну реально, там все плохо, но площадь первична - ее уже никак не улучшишь. А площадь хуже, чем в хрущевке, но чтобы сгладить кошмар, бонусом два корыта)
13.04.2026 10:32:36, Ольга1999 тел
спасибо, что написали :))) Я тоже думаю, что всe трындец, но это пиковский проект Строгино 360, в Строгино в принципе нет новостроя, место хорошее, планировка отстой и ведь даже ничего не переделать. Вот и мозги враскоряку, то ли тут в эту двушку впрягаться, то ли в Саларьево две студии детям купить, но средний сказал, что свою долю в нашей "коммуналке" на Саларьево не променяет никогда ;))))
13.04.2026 11:01:37, ПчЁлКа™®
А для какого состава вы эту квартиру рассматриваете? То есть или 2 студии детям или эту для кого?
13.04.2026 12:35:45, Ольга1999 тел
эту для нас троих я, муж и младший ребенок. Мы сейчас в 60 метрах в хруще живeм в трешке, нормально всe, одна комната даже лишняя, перестроили ее немного и гардеробная 3 кв метра у меня в маленькой спальне, и стиралка на двух метрах в ванной и кухня 4 метра вполне эргономичная получилась :))) Но на эти планировочки я смотрю и понимаю, что хрущи более человекоориентированы, чем вот это фсe...
13.04.2026 14:20:05, ПчЁлКа™®

их же 2.
а меня вот такая планировка удивила
13.04.2026 09:04:13, LoraEf
я не помню, это Саларьево? Я эту планировку тоже смотрела.
13.04.2026 10:37:11, ПчЁлКа™®
да вообще на одного и без гостей.
13.04.2026 09:53:22, ПчЁлКа™®

13.04.2026 09:34:09, УникаЛьнаЯ

стена в ванной полезнее второй двери
13.04.2026 09:58:54, LoraEf

13.04.2026 12:41:23, LoraEf

13.04.2026 10:45:57, УникаЛьнаЯ
да и в комнате можно сделать неплохой встроенный шкаф. А так комната 11 м с двумя дверями.
13.04.2026 10:38:36, ПчЁлКа™®

А вот комнаты по 9 метров я точно не понимаю.
И кухни в коридоре и на проходе. Как там готовить вообще непонятно. 13.04.2026 09:02:30, Хатуль Мадан

Жить вдвоем удобно даже с одним туалетом. 13.04.2026 08:57:45, NLU
Мне очень нравится, эргономичная планировка. Личная ванна и гостевой туалет.
Основная масса одежды хранится в прихожей, в спальне, только необходимое. 13.04.2026 08:56:09, хъ
Основная масса одежды хранится в прихожей, в спальне, только необходимое. 13.04.2026 08:56:09, хъ
У меня сейчас спальня 9 м (это кровать 180*200, две тумбочки, всe больше из мебели ничего не входит, но в этой маленькой спальне гардеробная 3 кв м и там всe необходимое и то не хватает места, летнюю одежлу зимой храню на даче, зимнюю летом там же ;)) Что необходимого можно в двустворчатый шкаф запихнуть, даже не представляю. Как два кв метра смогут разместить всe, кроме трусов, на трех человек, тоже для меня загадка. Т.е. если рассматривать одного проживающего, к которому приходят гости, то вроде и норм. Если двух, то уже под вопросом. В варианте трех (2 вз и ребенок), спальня взрослых превращается в проходной двор, как по мне. И на троих уже одной подсобки в 2 м явно маловато.
13.04.2026 09:29:32, ПчЁлКа™®
Под кроватью ничего не храните? У нас под кроватью, подъёмный механизм, лежат все дополняла, подушки, постельное белье, полотенца, скатерти. Удобно и место экономится.
13.04.2026 13:15:22, хъ на работе
если су не один, то что неудобного. аигардеробная или шкаф - городи что хочешь
13.04.2026 08:52:47, Шерлок
13.04.2026 08:52:47, Шерлок

13.04.2026 08:46:15, ПчЁлКа™®
Санузел из спальни, наверное, единственное, что мне на этих картинках понравилось
13.04.2026 09:09:41, Беата (просто читатель)
13.04.2026 09:09:41, Беата (просто читатель)
Читайте также
Домашнее мороженое и фруктовый лёд: простые рецепты и идеи
Домашнее мороженое и фруктовый лёд – это простой способ порадовать семью вкусным и освежающим десертом без лишних добавок. Разбираем, как приготовить их без мороженицы, какие ингредиенты выбрать и как добиться нежной текстуры.
Как защитить растения в саду от весенних заморозков: полный гайд
Весенние заморозки могут за одну ночь испортить рассаду, повредить цветы и лишить урожая. Разбираемся, как защитить растения в саду – от простых укрытий до эффективных профессиональных приёмов, которые действительно работают.